+54 3548 483026
arq.estudio.castillo@gmail.com
Inicio
Arquitectura
Diseño
+Estudio
Contacto
Novedades
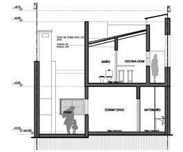
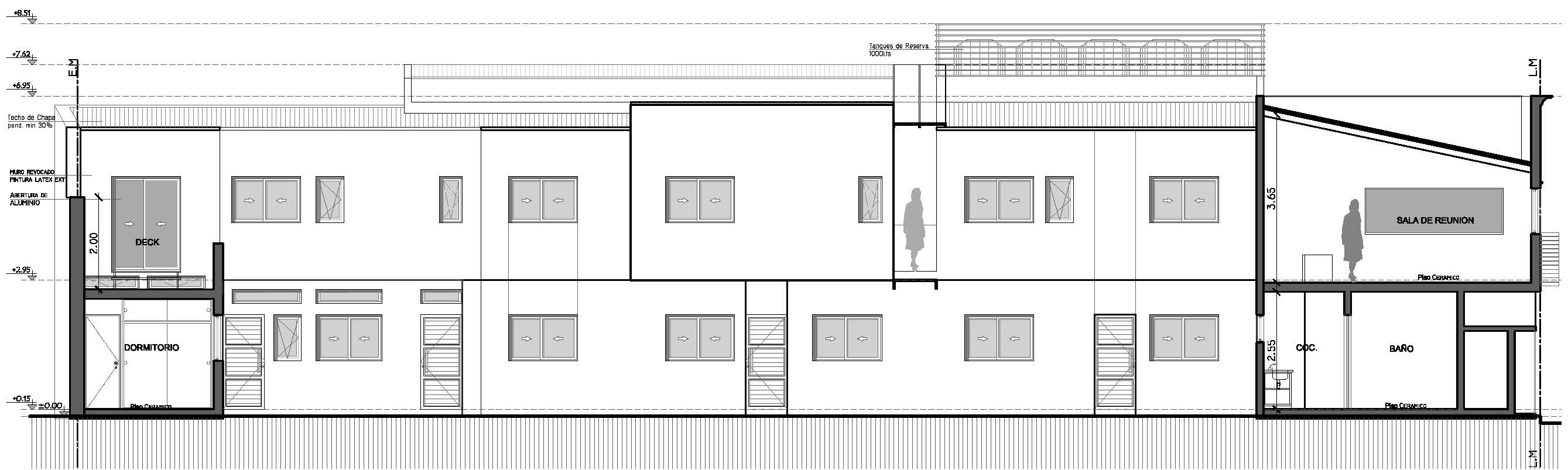
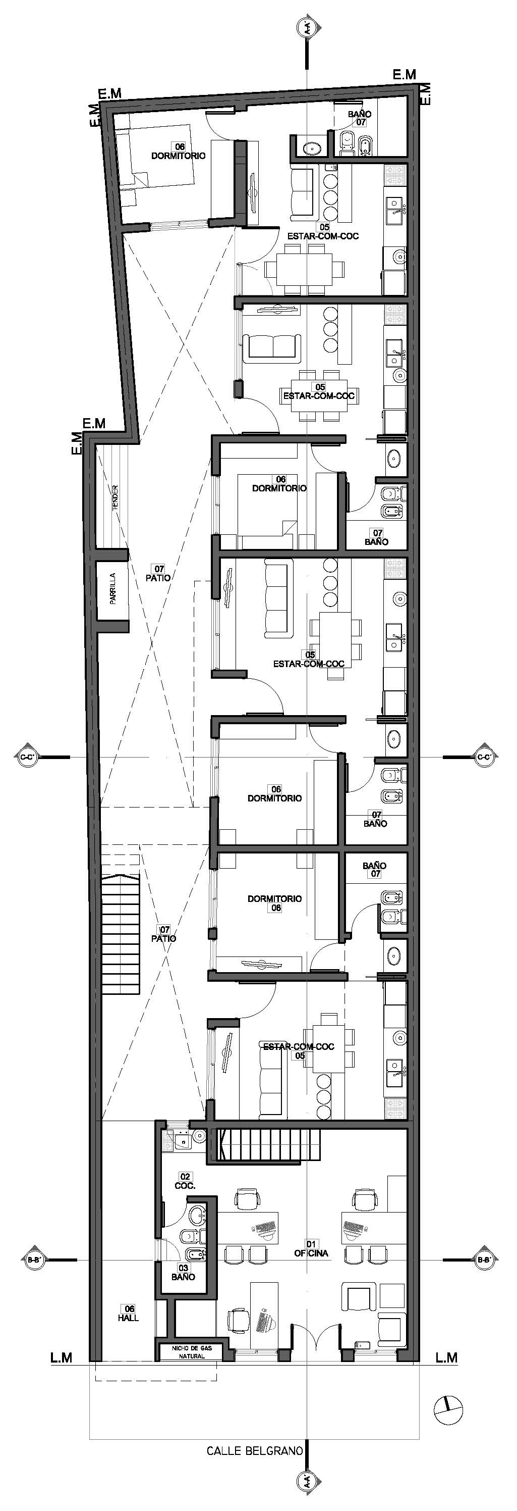
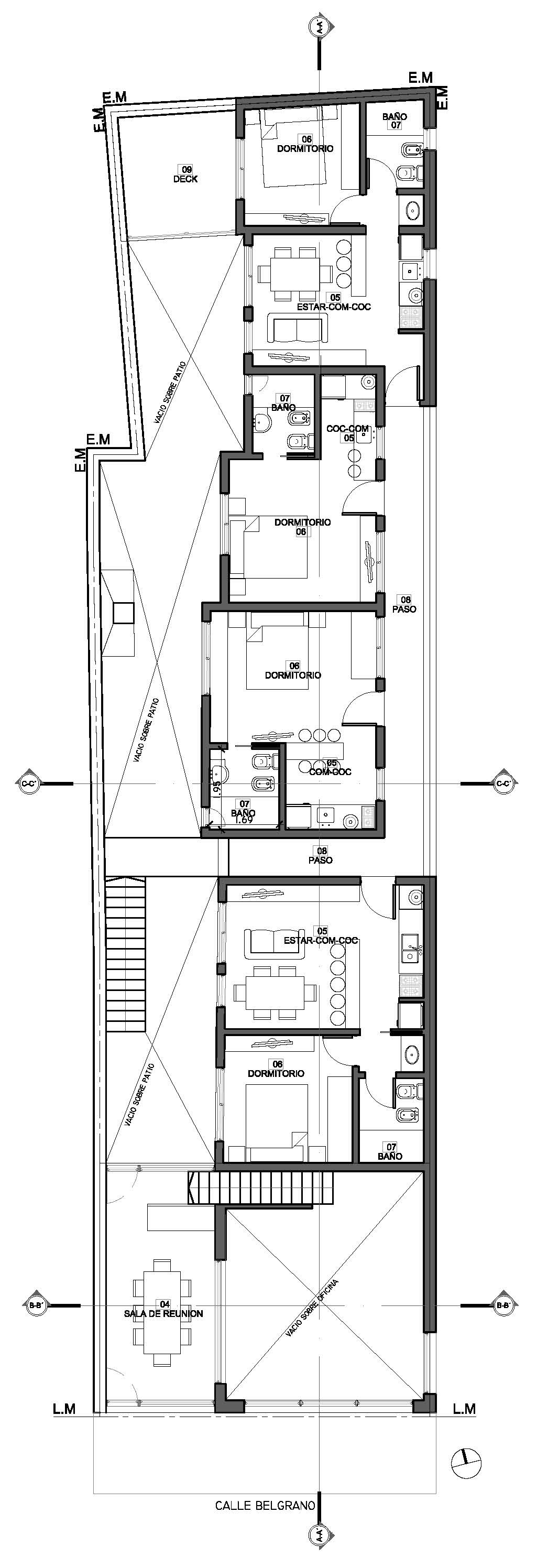
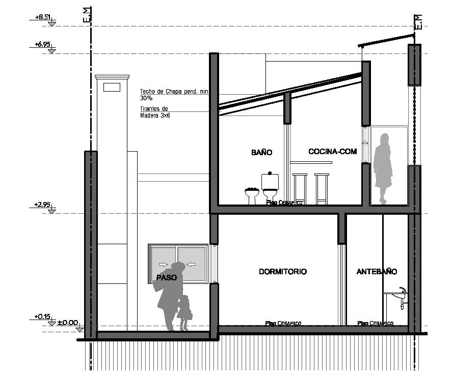
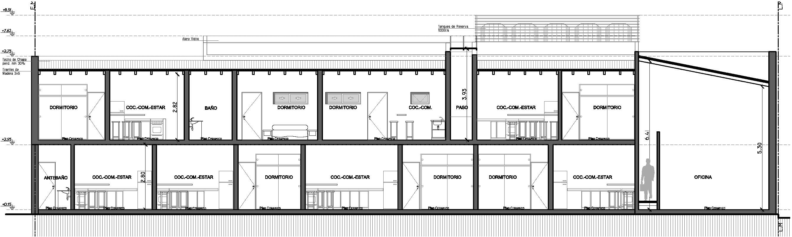
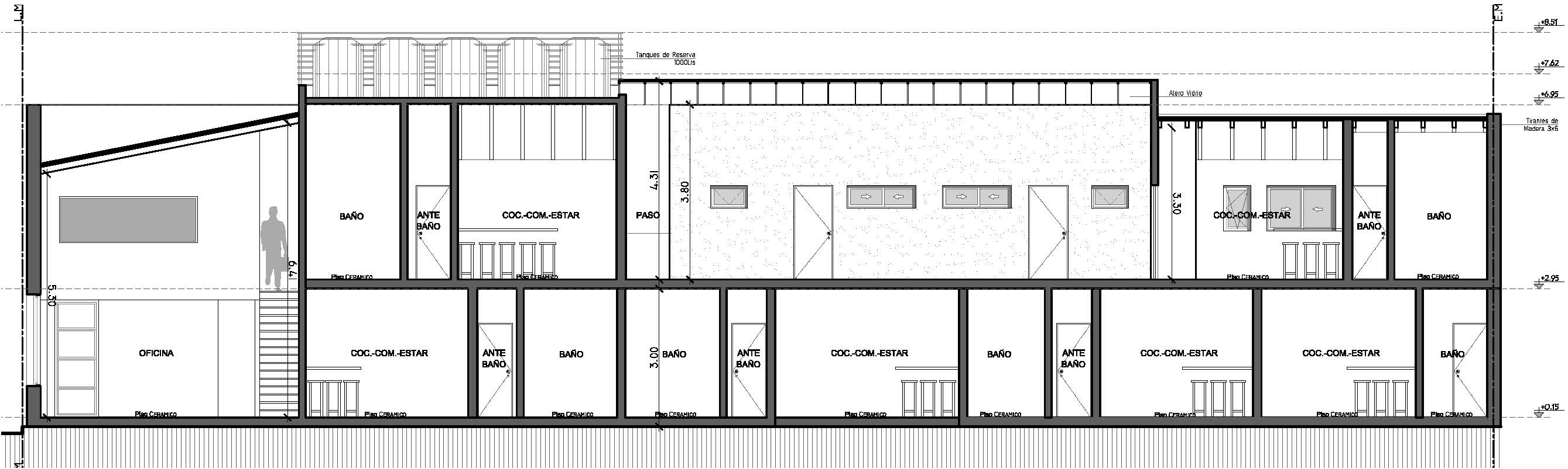
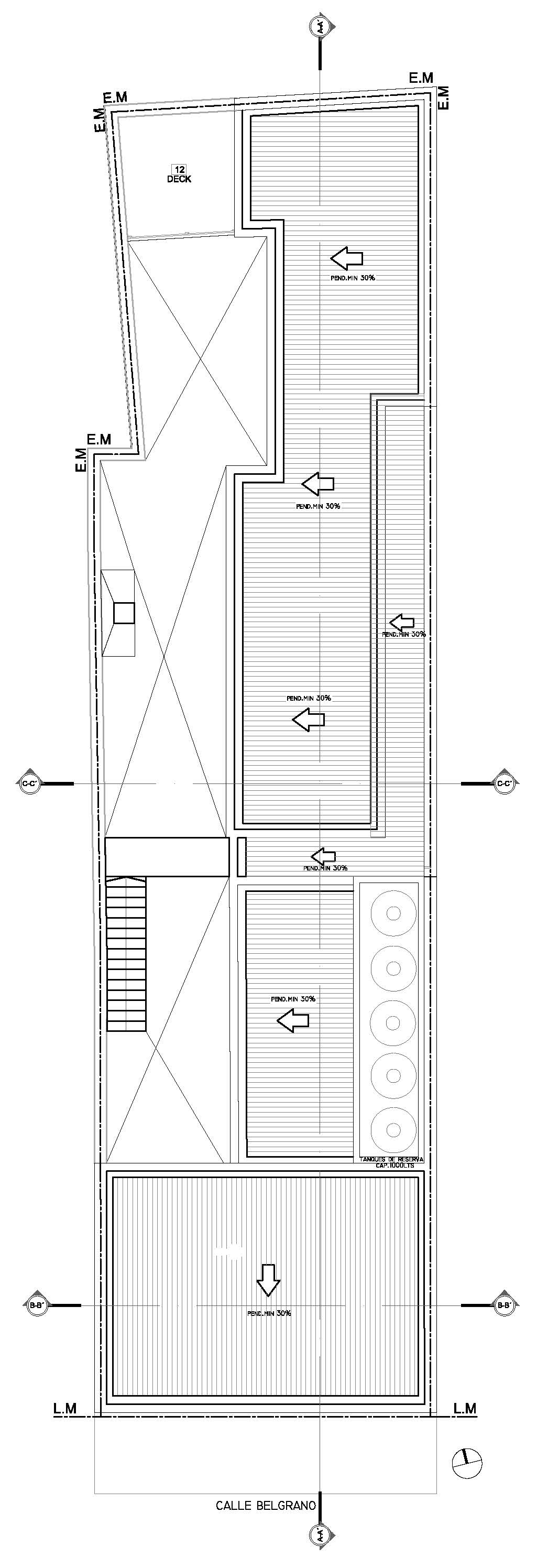
BELGRANO 238
OFICINA-VIVIENDA MULTIFAMILIAR
AGUADO PROPIEDADES|DEPARTAMENTOS BELGRANO 238
AÑO |
2015 |2017
UBICACION
|
BELGRANO N°238, CAPILLA DEL MONTE, CORDOBA, ARGENTINA.
SUPERFICIE
|
361 M2
FOTOGRAFIAS
|
MARIANO I.STEFAN | MAXIMILIANO J.CASTILLO.
Date
26 Mayo 2017
Categories
Arquitectura (Es)
Menu Principal
Inicio
Arquitectura
Diseño
+Estudio
Contacto
Novedades