+54 3548 483026
arq.estudio.castillo@gmail.com
Inicio
Arquitectura
Diseño
+Estudio
Contacto
Novedades
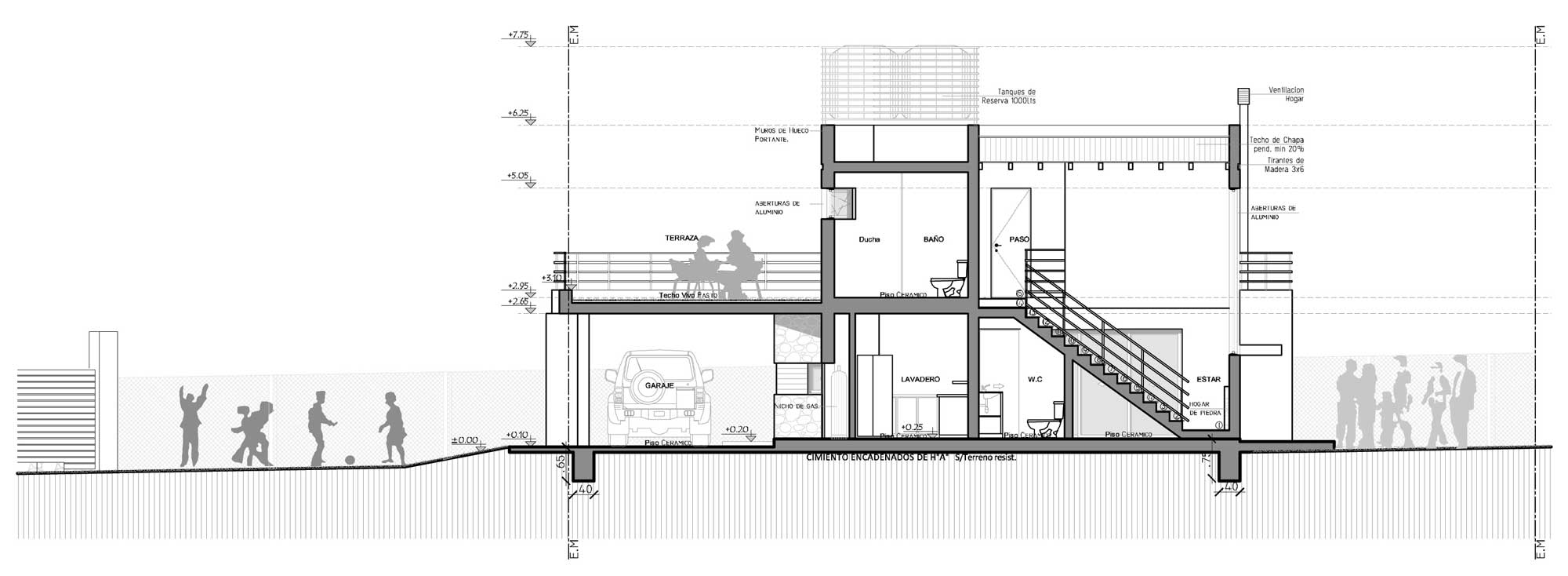
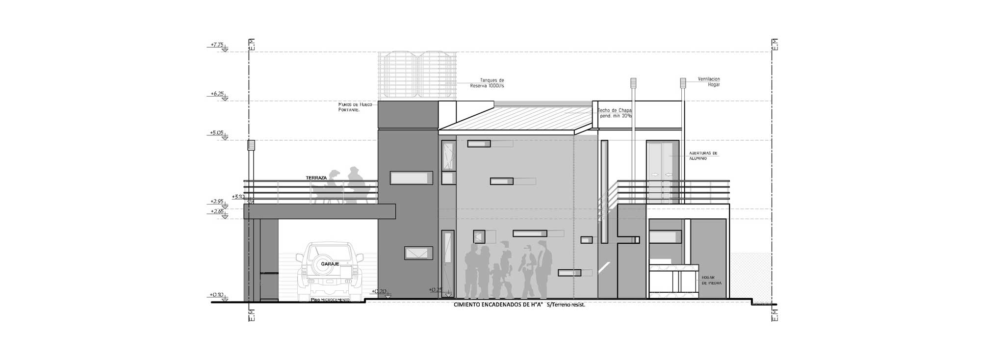
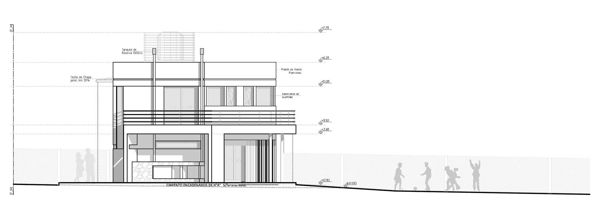
Casa ATA
VIVIENDA UNIFAMILIAR
CASA ATA
AÑO |
2016 |2017
UBICACION
|ISLAS GEORGIAS DEL SUR N°1247
, CAPILLA DEL MONTE, CORDOBA, ARGENTINA.
SUPERFICIE
| 125
M2
FOTOGRAFIAS
|
MARIANO I.STEFAN | MAXIMILIANO J.CASTILLO.
Date
26 Mayo 2017
Categories
Arquitectura (Es)
Menu Principal
Inicio
Arquitectura
Diseño
+Estudio
Contacto
Novedades