+54 3548 483026
arq.estudio.castillo@gmail.com
Inicio
Arquitectura
Diseño
+Estudio
Contacto
Novedades
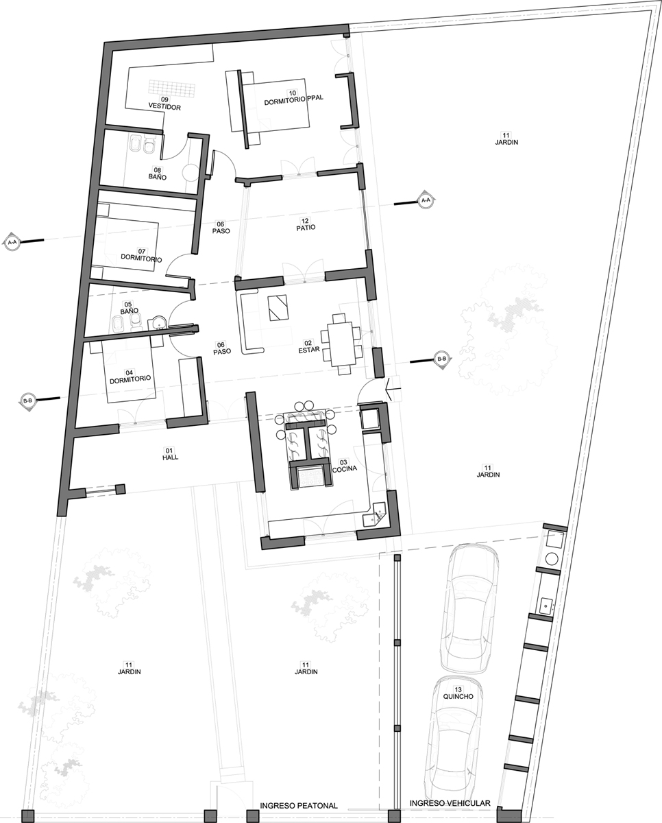
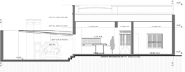
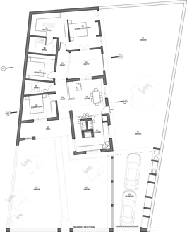
Casa WHISKY
VIVIENDA UNIFAMILIAR
CASA WHISKY
AÑO |
2015 | 2016
UBICACION
|ARISTOBULO DEL VALLE N°
CAPILLA DEL MONTE, CORDOBA, ARGENTINA.
SUPERFICIE
| 150
M2
FOTOGRAFIAS
|
MARIANO I.STEFAN | MAXIMILIANO J.CASTILLO.
Date
26 Mayo 2017
Categories
Arquitectura (Es)
Menu Principal
Inicio
Arquitectura
Diseño
+Estudio
Contacto
Novedades